Descripción
CASA DIAFANA EN MUY BUENA ZONA
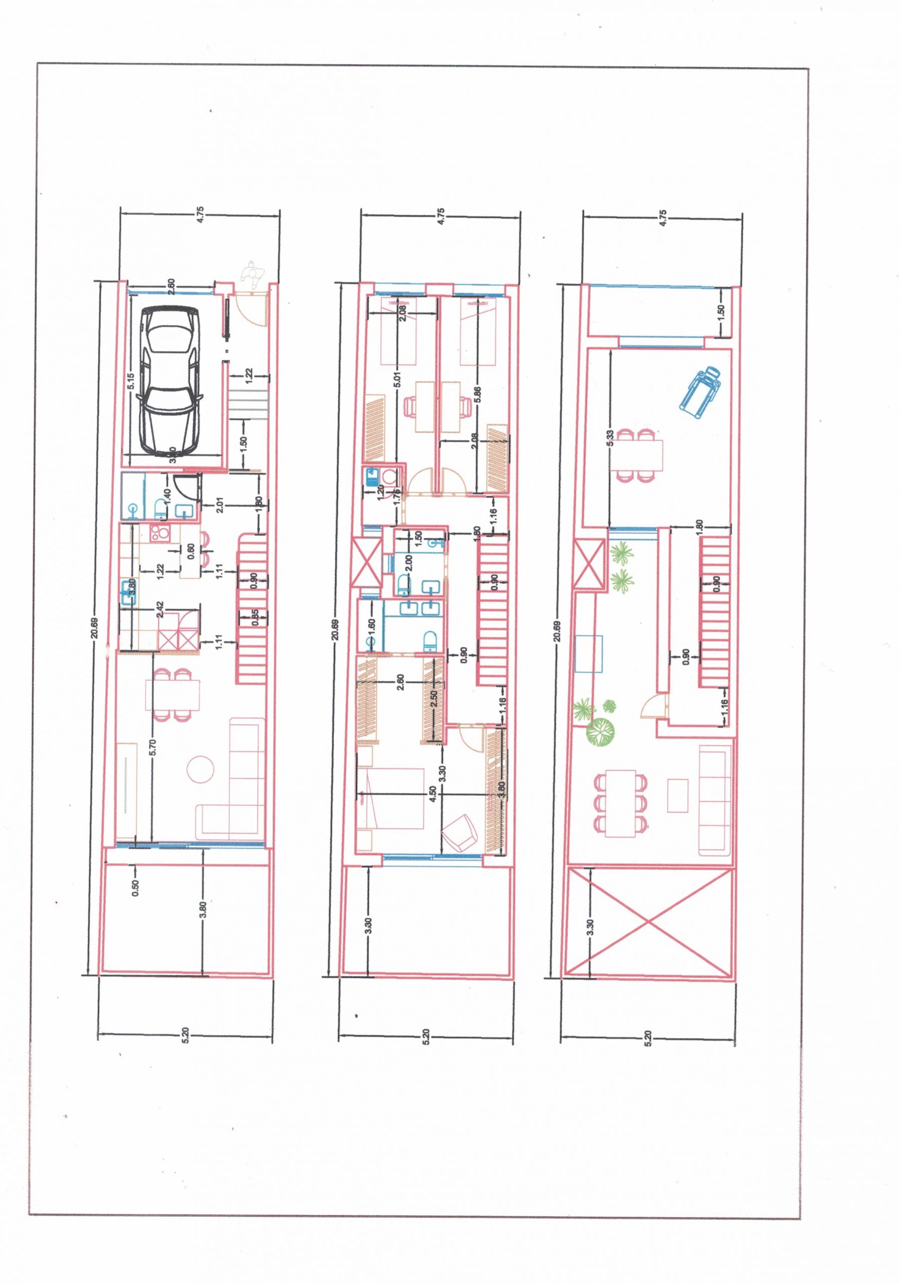
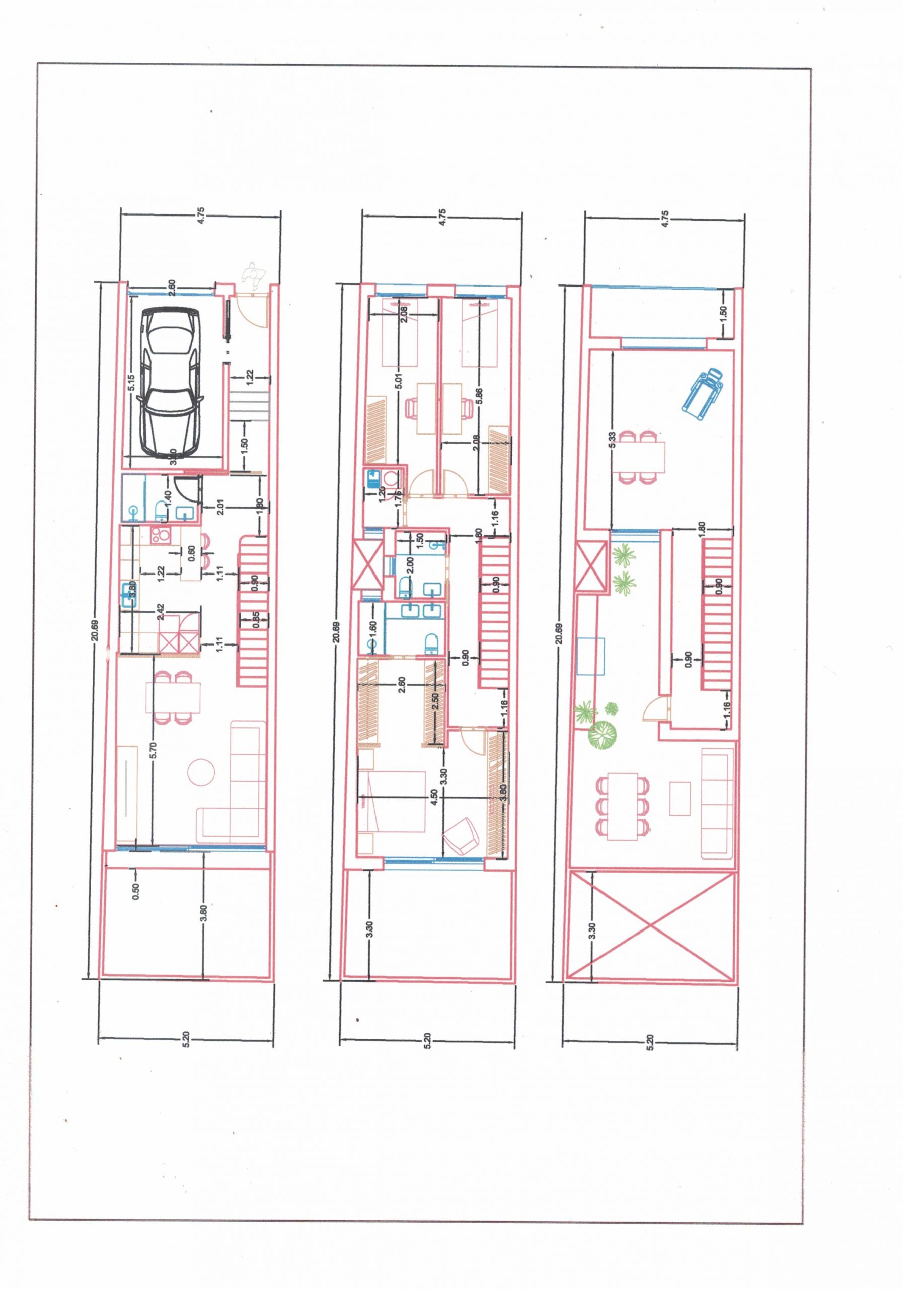
Casa con 105 m² de superficie, 160 m² construidos y con cinco metros de fachada.
La vivienda se encuentra en condiciones especiales, es como un lienzo en blanco para que puedas terminar de construir la casa de tus sueños.
La propiedad es diáfana y ya tiene trabajos realizados en la casa para seguir con la construcción. Ejemplo son las paredes divisorias con las propiedades colindantes, se han realizado tabiques con cámara de 20 cm. como aislamientos y suelo más alto con desagues nuevos, también como aislamiento para prevenir humedades.
Otros de los trabajos es la instalación eléctrica nueva (trifásica) y el techo todo reforzado con vigas de hierro nuevas.
La reforma permite garaje y un buen patio al final de la casa, pues en origen así era, casa de dos alturas con tejados altos a dos aguas y gran patio o corral . El patio actualmente está cerrado con chapa metálica como se muestran en las fotos.
La propiedad tiene muchas posibilidades y en las fotos se muestra el plano de uno de los posibles proyectos.
Déjate seducir por una futura casa espectacular, muy bien orientada y en una zona tranquila sin edificios altos.
CASA CON PROYECTO
MUCHAS POSIBILIDADES
GARAJE PATIO Y TERRAZA
Si desea recibir más información acerca de las características del inmueble contacte con nosotros. Del mismo modo, resolveremos sus dudas lo antes posible.
Estamos a su disposición en nuestra oficina en Vila-real en calle Sant Pasqual, 63.
También puedes seguirnos en Redes Sociales.
https://www.facebook.com/stopinmobiliariaeinversiones/










